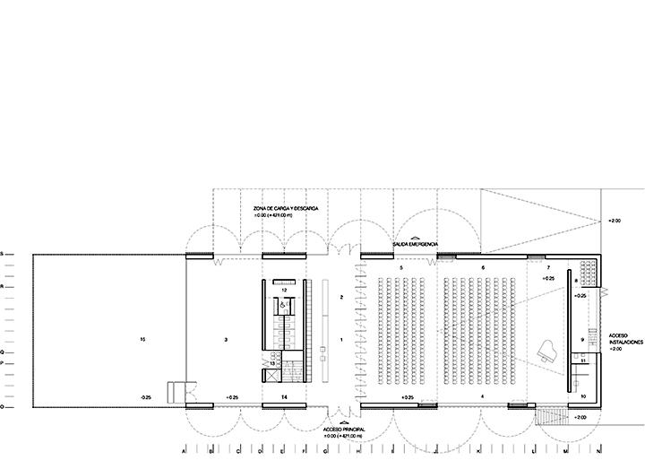
Cerezo convention center

Jerte
Cerezo convention center

Cáceres (Spain)
Competition 
2008

gross floor area: 997,19m2 
client: Junta de Extremadura
contributors: Eloísa Marazuela 
technical surveyor: Alberto López
photography: Sergio Parra

(+)
Concursos de arquitectura en Extremadura 2009